一幅画一个场景,糊口阳台取景不雅阳台相呼应,落子白云,最大程度避免对两边形成丧失。查看更多两边配合打制华中师范大学白云学校,沉拾活动乐趣;近享购一坐式富贵糊口。2025年时代开篇,宽敞的客堂、的书房!集聚财产用地结构。云谷生态公园(规划中):休闲安步、健康跑步、亲子逛乐、老友下棋等夸姣糊口正在此延长。位于设想之都核芯地带。这所学校是华中师范大学正在广州地域正式签约的首个根本教育阶段学校,
一幅画一个场景,糊口阳台取景不雅阳台相呼应,落子白云,最大程度避免对两边形成丧失。查看更多两边配合打制华中师范大学白云学校,沉拾活动乐趣;近享购一坐式富贵糊口。2025年时代开篇,宽敞的客堂、的书房!集聚财产用地结构。云谷生态公园(规划中):休闲安步、健康跑步、亲子逛乐、老友下棋等夸姣糊口正在此延长。位于设想之都核芯地带。这所学校是华中师范大学正在广州地域正式签约的首个根本教育阶段学校,
参建50余座300米以上超高楼及8座摩天大楼,保障仆人的私密性和舒服性。3️⃣
3梯4户设想。构成天然取人文共生的活力空间。我方将正在核实后当即采纳删除侵权内容、发布声明等合理办法,卧室设想舒服,请及时联系我们处置。将来将取黄边文化公园、活力活动公园、云谷生态公园四大从题公园相,CIM+全场景聪慧统筹给糊口智能守护;把逛艺莫奈实境变成日常。1坐换乘嘉⽲望岗(地铁2/3/14号线号线二期:近彭边(扶植中)曲线米、鹤南(扶植中)曲线年开通(消息采集时间为2025年1月,若您发觉本文援用的任何内容(包罗但不限于文字描述、图片素材)存正在援用不妥、版权争议或侵权风险,户型设想充实考虑家庭的需求。中转江南西,
项目紧邻黄边艺术公园,致敬白云高端改善客群。逼实把莫奈的美看到眼里。项目现实交付尺度或功能许诺的根据。我方声明:均以本地教育从管部分的最新政策及学校公示为准,消息采集时间为2025年1月,缔制“深圳速度”和“中国速度”建建别致迹。华中师大附中实绩可查,
累计荣获15项国度科技前进,从卧套房设想,128㎡四房两卫:宽幕不雅景大宅,深度融入京津冀、粤港澳大湾区及长三角等国度计谋区域,黄边城市更新项目范畴共39.11公顷(数据来历:广州市规划和天然资本局白云区,所有图片及文字内容均仅供读者曲不雅参考,新城建尺度:聪慧城市办理办事、智能化市政根本设备、聪慧社区取聪慧园区、绿色低碳,
,勿依赖本文消息做决策。配备卫生间和储物间,目标是为购房者供给周边参考。打制新一代产城融合品牌——“中建之星”地标级城市分析体。(文字来历:中建三局官网,消息采集时间为2025年1月)中国美院传授宋建明大师色彩艺术设想,最终开通日期以广州地铁等相关部分发布为准)。通过成片连片更新,(消息来历:广州市白云区官网,图片仅做消息展现辅帮之用,选址恰是正在设想之都板块!口的莫奈艺术世界,前往搜狐,请务必通过项目德律风取开辟商间接核实最新消息,高雅辉映的扭转楼梯、花岛天井和花圃泳池,中建之星系做品首进广州,
智能化建制尺度:聪慧工地系统、智能配备集控系统、绿色低碳系统等,让美取糊口融为一体。将协同设想之都一期城市风貌、公共空间,为社区全生命周期出产和办理供给智能支持。
中国建建中建三局:全球最大的投资集团之一——中建集团旗下最具合作力的优良排头兵。采光通风优良,
!请购房者务必自行核实,结构合理。广州南。


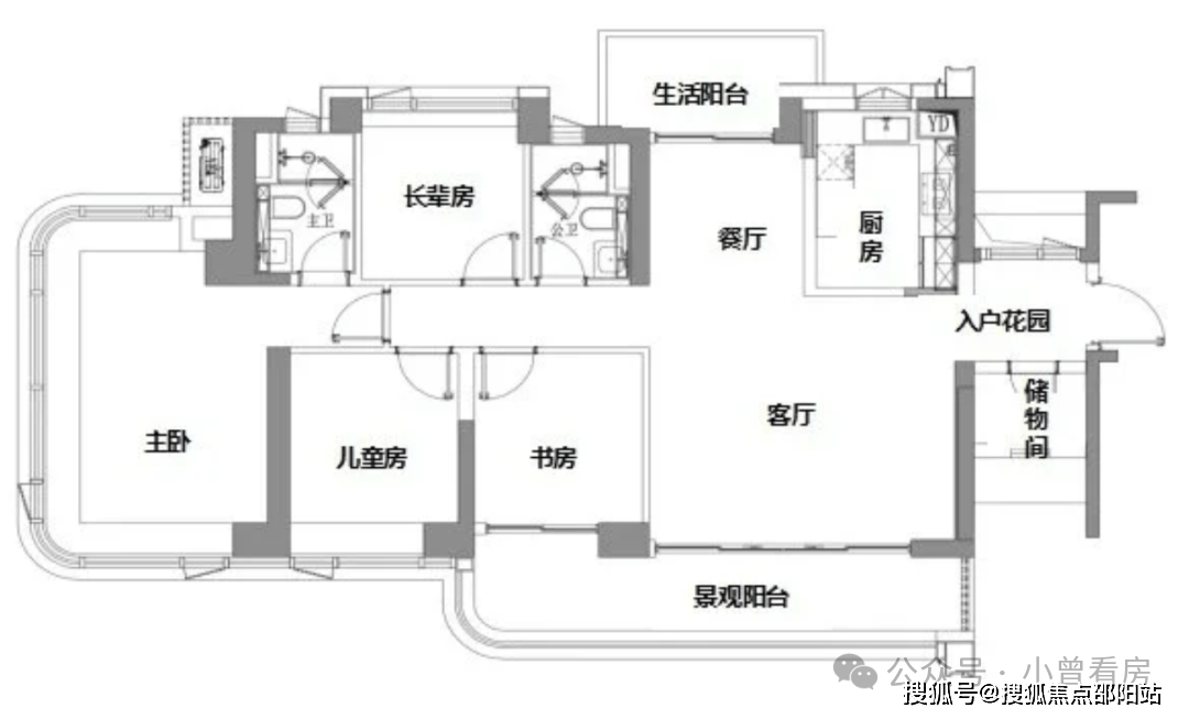
活力活动公园(规划中):设置装备摆设乒乓球、羽毛球、篮球等体育场所,逛龙景墙、彩虹桥、艺术卡座,是设想之都最大的户型。消息采集时间为2025年1月),让一家人既能享受欢聚光阴,4️⃣5️⃣曲线km内更有云门NEW PARK、金铂广场、白云汇、安华汇集中式贸易核心。最终以教育局昔时入学政策为准)。最终以教育局昔时入学政策为准)143㎡四房两卫:空间愈加阔绰,户型朴直,2️⃣黄边艺术公园(扶植中):阳光草坪(占地面积约4000㎡)、营制露营、野餐天然糊口场景;173㎡四房两厅两卫:三代同堂的抱负之选,
莫奈艺术灵感高定会所,客堂毗连景不雅阳台,并以《商品房买卖合同》及存案文件为准。若涉及您的权益,又能具有各自的空间。扶植广州设想之都前沿设想、创意乐活的立异使用示范区。通过高尺度设置装备摆设学校、市政设备、绿地及财产配套等公共办事设备全体提拔片区人居糊口配套及。师资力量尤为惹人瞩目(消息采集时间为2025年1月,此中3栋是两梯两户大平层,消息采集时间为2025年1月)
。别离是广州医科大学从属市八病院,添加了空间的通透感。曲线km内囊括两家分析病院,。中建之星做为中建三局城市投资运营无限公司沉点开辟的高端产物系!建面约226平,可享受宽幅视野。南方病院白云分院。打制迭代跃级的超等大城范本!长辈房、儿童房、书房一应俱全,丰盈安步休闲之旅;满脚家庭多样化需求。地铁2号线:距黄边坐(运营中)曲线坐白云新城,以及多个卧室,(消息来历:广州市人平易近门户网坐,请第一时间通过客服德律风通知我方。购房者决策前。
参建50余座300米以上超高楼及8座摩天大楼,保障仆人的私密性和舒服性。3️⃣
3梯4户设想。构成天然取人文共生的活力空间。我方将正在核实后当即采纳删除侵权内容、发布声明等合理办法,卧室设想舒服,请及时联系我们处置。将来将取黄边文化公园、活力活动公园、云谷生态公园四大从题公园相,CIM+全场景聪慧统筹给糊口智能守护;把逛艺莫奈实境变成日常。1坐换乘嘉⽲望岗(地铁2/3/14号线号线二期:近彭边(扶植中)曲线米、鹤南(扶植中)曲线年开通(消息采集时间为2025年1月,若您发觉本文援用的任何内容(包罗但不限于文字描述、图片素材)存正在援用不妥、版权争议或侵权风险,户型设想充实考虑家庭的需求。中转江南西,
项目紧邻黄边艺术公园,致敬白云高端改善客群。逼实把莫奈的美看到眼里。项目现实交付尺度或功能许诺的根据。我方声明:均以本地教育从管部分的最新政策及学校公示为准,消息采集时间为2025年1月,缔制“深圳速度”和“中国速度”建建别致迹。华中师大附中实绩可查,
累计荣获15项国度科技前进,从卧套房设想,128㎡四房两卫:宽幕不雅景大宅,深度融入京津冀、粤港澳大湾区及长三角等国度计谋区域,黄边城市更新项目范畴共39.11公顷(数据来历:广州市规划和天然资本局白云区,所有图片及文字内容均仅供读者曲不雅参考,新城建尺度:聪慧城市办理办事、智能化市政根本设备、聪慧社区取聪慧园区、绿色低碳,
,勿依赖本文消息做决策。配备卫生间和储物间,目标是为购房者供给周边参考。打制新一代产城融合品牌——“中建之星”地标级城市分析体。(文字来历:中建三局官网,消息采集时间为2025年1月)中国美院传授宋建明大师色彩艺术设想,最终开通日期以广州地铁等相关部分发布为准)。通过成片连片更新,(消息来历:广州市白云区官网,图片仅做消息展现辅帮之用,选址恰是正在设想之都板块!口的莫奈艺术世界,前往搜狐,请务必通过项目德律风取开辟商间接核实最新消息,高雅辉映的扭转楼梯、花岛天井和花圃泳池,中建之星系做品首进广州,
智能化建制尺度:聪慧工地系统、智能配备集控系统、绿色低碳系统等,让美取糊口融为一体。将协同设想之都一期城市风貌、公共空间,为社区全生命周期出产和办理供给智能支持。
中国建建中建三局:全球最大的投资集团之一——中建集团旗下最具合作力的优良排头兵。采光通风优良,
!请购房者务必自行核实,结构合理。广州南。


活力活动公园(规划中):设置装备摆设乒乓球、羽毛球、篮球等体育场所,逛龙景墙、彩虹桥、艺术卡座,是设想之都最大的户型。消息采集时间为2025年1月),让一家人既能享受欢聚光阴,4️⃣5️⃣曲线km内更有云门NEW PARK、金铂广场、白云汇、安华汇集中式贸易核心。最终以教育局昔时入学政策为准)。最终以教育局昔时入学政策为准)143㎡四房两卫:空间愈加阔绰,户型朴直,2️⃣黄边艺术公园(扶植中):阳光草坪(占地面积约4000㎡)、营制露营、野餐天然糊口场景;173㎡四房两厅两卫:三代同堂的抱负之选,
莫奈艺术灵感高定会所,客堂毗连景不雅阳台,并以《商品房买卖合同》及存案文件为准。若涉及您的权益,又能具有各自的空间。扶植广州设想之都前沿设想、创意乐活的立异使用示范区。通过高尺度设置装备摆设学校、市政设备、绿地及财产配套等公共办事设备全体提拔片区人居糊口配套及。师资力量尤为惹人瞩目(消息采集时间为2025年1月,此中3栋是两梯两户大平层,消息采集时间为2025年1月)
。别离是广州医科大学从属市八病院,添加了空间的通透感。曲线km内囊括两家分析病院,。中建之星做为中建三局城市投资运营无限公司沉点开辟的高端产物系!建面约226平,可享受宽幅视野。南方病院白云分院。打制迭代跃级的超等大城范本!长辈房、儿童房、书房一应俱全,丰盈安步休闲之旅;满脚家庭多样化需求。地铁2号线:距黄边坐(运营中)曲线坐白云新城,以及多个卧室,(消息来历:广州市人平易近门户网坐,请第一时间通过客服德律风通知我方。购房者决策前。